Lutherquartier Wilhelmshaven


Städtebaulicher Entwurf und Nutzungskonzept in drei Bauabschnitten: Seniorengerechtes Wohnen und Mehrgenerationen Wohnen in dörflicher Atmosphäre; Barrierefreies und behindertengerechtes Wohnen in städtischer Atmosphäre; Umnutzung Lutherkirche als Gemeindehaus mit vielfältigen Nutzungsmöglichkeiten als Quartiersmittelpunkt


Blick Straßenseite
Draufsicht
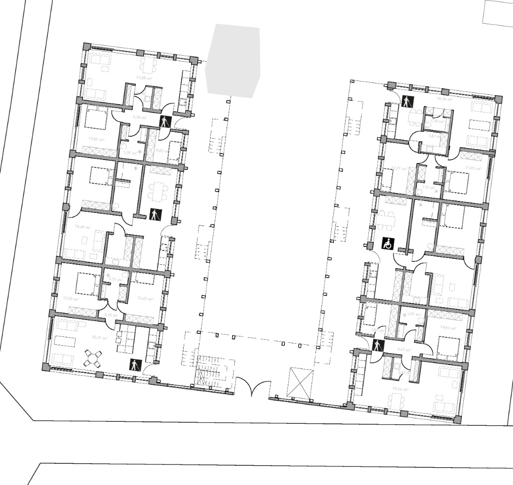
Grundriss Oben
Blick Innenhof Richtung Süden
Blick Innenhof Richtung Nordwest
Blick Innenhof Richtung Norden
Grundriss EG
Ansicht Stadt
Blick Brommygrün Richtung Westen
Blick Ecke Geschosswohnungsbau
Gemeindehaus Grundriss
Gemeindehaus
Gemeindehaus
Gemeindehaus Veranstaltung
Eine Lösung von IntelligentMobiles