Erweiterung Campus JAP Architekten

Die Campusidee

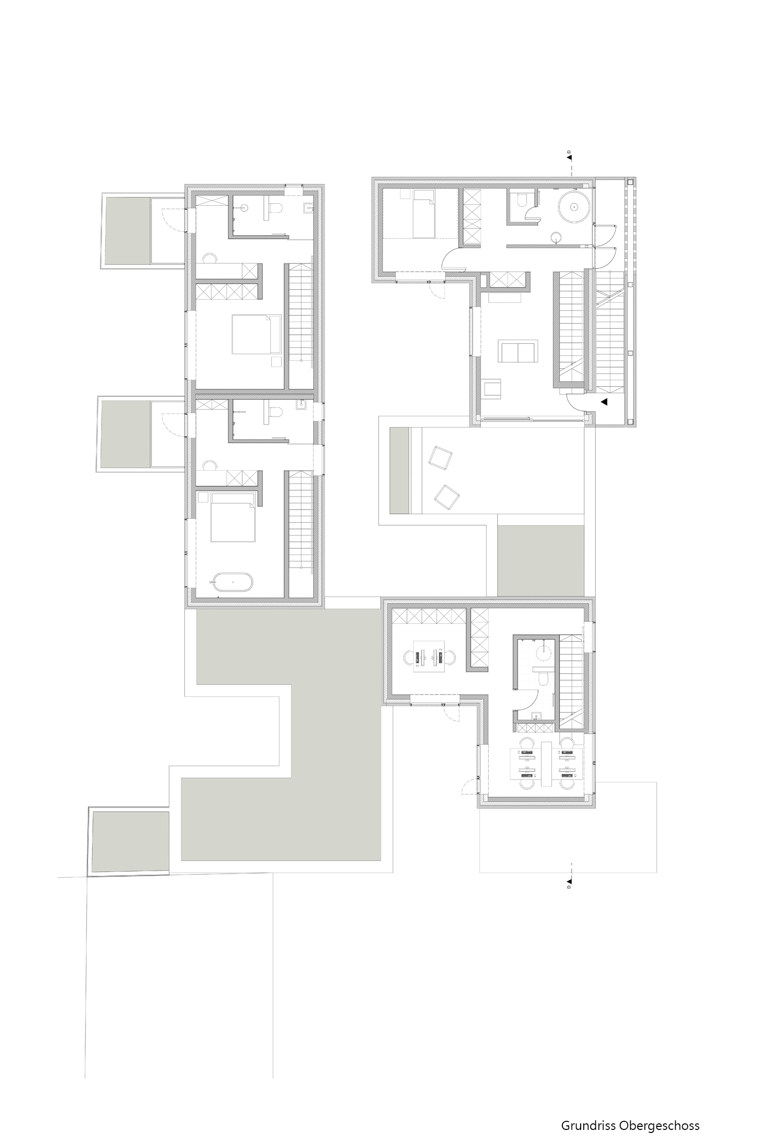
Im Schubertring 32, in direkter Nachbarschaft zum Büro JAP, entsteht ein Einzelhaus mit sechs Wohneinheiten in unterschiedlichen Größen. Die Einheiten gruppieren sich um einen Innenhof. Jede Einheit verfügt über eine Terrasse mit Garten im EG und über kleine Austritte im Obergeschoss. Für das Gebäude haben wir mit Petersen Tegl in Dänemark einen Verblendziegel und Mauermörtel entwickelt, der in Struktur und Farbe sehr genau auf den Ort abgestimmt ist. 

Der Ziegel wird als Bodenbelag im Außenbereich fortgeführt. Die Fenster und Türen unterstützen die herrschende Materialität des Ziegels und bilden notwendige Akzente in der Gebäudehülle. Handwerklich greifen wir die Tradition exzellenter Arbeiten im Maurerhandwerk auf und schaffen an Wand und Boden Bereiche angemessener Offenheit und Verdichtung, schaffen und nehmen Ein- und Ausblicke. So entsteht eine noch intensivere Wechselwirkung des Gebäudes mit seinem Ort. In Fortführung unserer Leidenschaft für das Zusammenspiel der Materialien stimmen wir die Auswahl für die Innenräume und Gärten mit Ort und Hülle sorgsam ab.

Baubeginn 01-21, geplante Fertigstellung 2022. Leistungsphasen 1-9

Beteiligte Ingenieure: Reinhold Schnieders, TGA, Stefan Hoffmann, IGT, Statik

Eine Lösung von IntelligentMobiles